Brewster Cottage, Cape Cod

2018
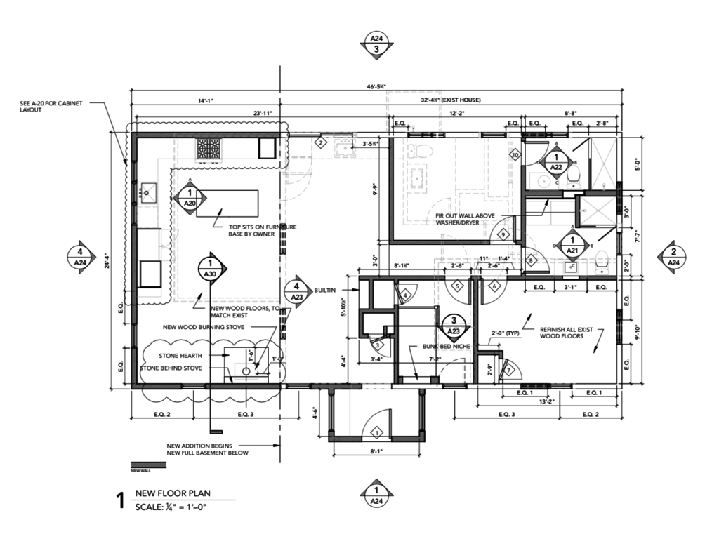
New construction on a slightly expanded foundation of an existing cottage, c.1965

Contractor: Fore & Aft, Inc., Larry Brutti, Harwich, MA

Photography by Justine Hand

The existing structure on the site was an unassuming cottage that is a short walk from Cape Cod Bay in Brewster, Massachusetts. One of the owners spent summers there when he was young, but now the cottage was in disrepair. In order to accommodate the family and get three proper bedrooms and two baths into the building, the footprint needed to be expanded by about 200 SF.

The other owner is a designer, so we worked closely with her on every detail. Originally from France, she brought a charming transatlantic sensibility to the space.

Our clients had a nostalgic attachment to the existing structure. At first we assumed that it could be saved. But once the new space was designed—windows were moved and expanded, the hung ceiling was removed to open the space to the rafters, new baths were added, the kitchen was reorganized—it seemed prudent to replace the entire building. The new building has more-or-less the same massing and materials as the original—if you were familiar with the building and drove by now, you would assume that it had been remodeled.

The cottage is still humble and extremely compact, but now it is filled with space and light and French antiques .