Signal Hill House

Interior Architecture and Decoration
2014 to 2018
Chilmark, Martha's Vineyard, Massachusetts

Photography: Aaron Leitz

After an extensive search, our client commissioned Olson Kundig in Seattle to design their house. We started working on the project as the schematic design was being completed.

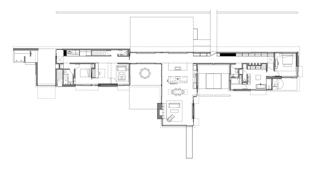
We had previously worked with the clients on projects in Brookline, Cambridge, and New York City, all adaptive reuse projects. We thoroughly understood their aesthetic preferences, but this was a different challenge than the other three. As long time habitués of Martha's Vineyard, they had been dreaming about undertaking this project for some time. Once they acquired the unique waterfront site, the architectural challenges became clear and were significant in shaping the building: in order to maintain a view off the water and respect the height limit, the architects developed a linear scheme with all the rooms along a 150 foot corridor.

The clients are quite particular so this was an iterative design process where every design detail was thoroughly considered. Within a limited material and color palette (white), we worked closely with the clients to develop every aspect of the interior—materials, surfaces, millwork, cabinetwork, hardware, and furniture... for four years. While the architectural interiors were conceived of as a well-crafted piece of furniture—the sliding cabinet that allows one room to become two is a case in point—the actual furniture is quite humble. Over the course of the project we heard from the clients a number of times that this project was, after all, just a beach house. Technically yes, but what an extraordinary one.