Stir

102 Waltham Street
Boston, MA
Opened Fall 2007
General Contractor: Gilman, Guidelli & Bellow

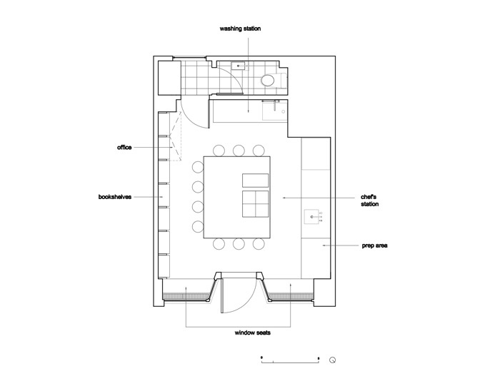
At 275 square feet, the design of Stir was, first and foremost, a packing problem. The programmatic requirements included a cookbook store and lending library, a demonstration kitchen for cooking lessons, a place for private sit-down dinners for 10 and stand-up cocktails for 20, and the requisite restroom, office, and storage.

The solution was to fill the space with an island with 4 seats on one side, 3 seats on two sides, and a chef’s station that includes a plancha and induction burners, on the fourth side.

As you enter the space, the long wall on the left hand side of the rectangular space is filled, top to bottom, with stainless steel bookshelves. An “office” within the bookshelves is hidden away behind cabinet doors when the space is use. The right hand wall, behind the chef’s station, is the prep area. The short wall opposite the storefront door is a washing station. The storefront wall has two window seats that are used for perusing cookbooks and to accommodate overflow seating during demonstrations.

Aesthetically, the space was designed to replicate Chef Barbara Lynch’s kitchen at home (a project that we completed the year before Stir opened). Stir has cork floors, walnut cabinets, stainless steel and marble countertops, glass shelves, and a back-painted glass menu board. An etched glass storefront ensures privacy for functions while allowing the space to be filled with daylight.

Visit Stir’s website