Projects
Residential
Pier House
Shawmut Street Apartment
Brookline House
New Hampshire Lake House
Signal Hill House
Seashore House
Rec Room for Grown-Ups
Nantucket House
Back Bay Apartment
Truro House
More Residential…
Restaurants
Pearl & Lime
Sarma
Fat Baby
The Gold Bar at Menton
Menton
No 9 PARK
Sportello
B&G Oysters
Foumami
Drink
More Restaurants…
Retail
Sofra
Crumbs
Plum Produce
YARD Co
Tatte Fine Cookies & Cakes
Stir
Treat Cupcake Bar
Crabtree & Evelyn
Workspaces
Spark Capital's New Boston Office
Spark Capital, New York City
Flywire, Chicago
edu.com
Grand Circle Travel
Institutional
University Club
Bates Dining Hall & McAfee Living Room
Freeman Living Room
Longwood Cricket Club
The Country Club
Jewett Art Center
MIT Technology Review
Exhibition
Marvin at 7 Tide
MegaFood
Beautycounter
The Gemvara Experience
All Projects
Writing
About
Contact
Home
Projects
Institutional
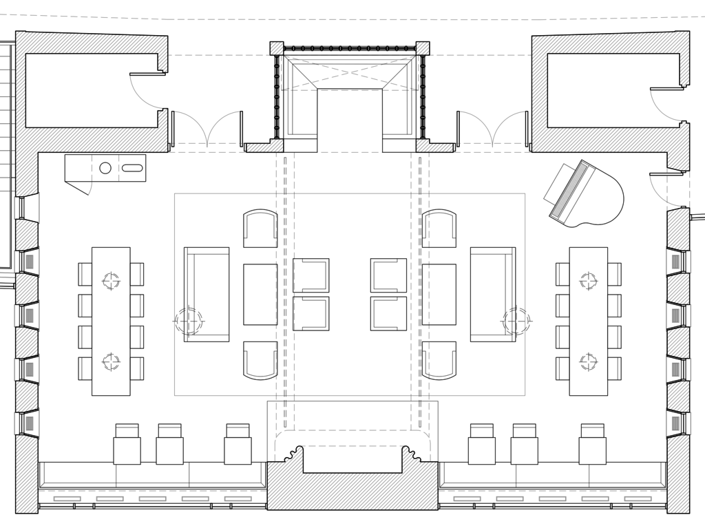
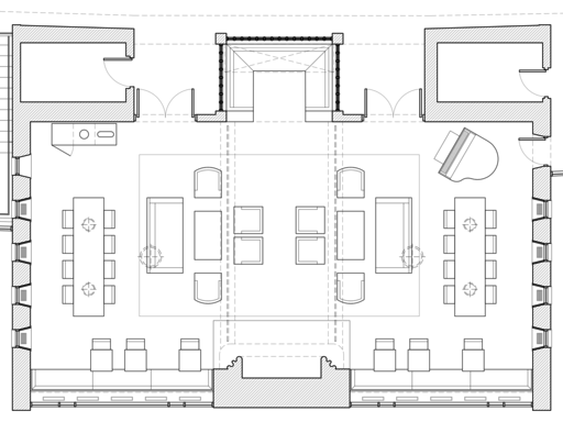
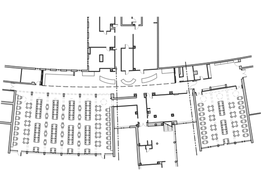
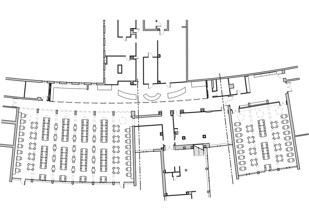
Bates Dining Hall & McAfee Living Room
Bates Dining Hall & McAfee Living Room
Bates Dining Hall & McAfee Living Room
Wellesley College
Renovation and furnishings, 2017